-
용도임대공장
-
대상지역동나이
-
위치
-
형태/크기다양
-
금액 및 거래방법㎡당 3.8 USD
-
상담/문의비나한인, 0909 194 181, viethoasong@gmail.com, 카톡ID: vinahanin(무료 동화)
-
물건과 등록자 관계중개인
-
거래상태진행중
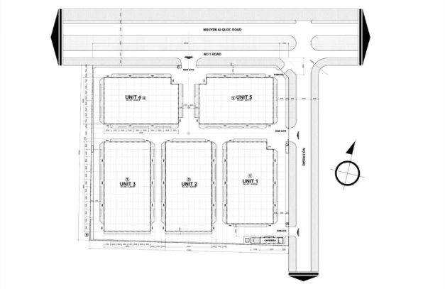
동나이성 최적의 입지 조건을 갖춘 임대공장
공단내 신축공장으로서 임대료 최저가 수준
임대료: 3.8 USD/월/㎡
최소 계약 기간: 3년~5년
관리비: 0.1USD/월/㎡
보증금:4개월
즉시 입주 가능
호치민 시 중심부에서 자동차로 50분 거리
Cat Lai 국제 콘테이너 항구 40분 거리
호치민 신 공항 인근 지역
각종 행정 지원
상담/문의(베트남 부동산 입지선정 상담/중개료 무료)
베트남 국가번호 +84
베트남: 0909 194 181(한국어/일어) / 028 6681 0114(베트남어/영어)
한국에서: +84 909 194181(한국인 직통)
이메일: viethoasong@gmail.com
카카오톡 ID: vinahanin (무료 직통 통화 가능)












| 공지 | 베트남 임대공장 외투법인 제조공장 설립을 위한 공장 임대 입지선정 |
동나이 성 LONG KHANH 지역 단독 독립 형태의 신축 공장
호치민 인근 성인 동나이 롱칸 지역 신축 독립형 임대공장 접근 성 호치민 중심부로부터 약 1시간 40분 안푸 타오티엔 지역 약 1시간 30분 ...
임대공장
남부, 호치민, 동나이
본문 참고
하이퐁 공장 임대, PHUC DIEN INDUSTRIAL PARK
하이퐁 직할시(통합 전 Hai Duong), 대규모 공단 PHUC DIEN INDUSTRIAL PARK 내 공장 임대 다양한 면적의 임대공장(2600~3,940㎡) 하이퐁 시...
임대공장
하이퐁
임대료: 5.2 USD/㎡/월 (관리비 포함)
베트남 임대공장, 남부 동나이 공업단지내 표준 임대공장
호치민 중심부로 부터 1시간 20, 한국인 주재원들이 선호하는 호치민 고급 생활 거주 구역인 2군(안푸 타오티엔) 지역으로 부터 약 40분 거...
임대공장
동나이
월 4.4 USD/㎡
호치민 인근, 롱안 성 아파트 형태의 고층 임대공장 푸미흥으로부터 약 30분, 호치민 중심부로부터 약 1시간 20분 거리의 접근성 좋고 인프...
임대공장
롱안
빈증성 공단내 신축 공장 임대, 베트남 건축법 규정에 부합하는 표준 임대공장
빈증성 공단내 표준 임대공장 호치민 중심부 자동차로 1시간 40분, 안푸 고속도로 인터체인지 1시간 20분 거리 안푸 고속도로 인터체인지 인...
임대공장
빈증
호치민 인근 성, 공단 내 임대 공장으로 저렴하고 가성비 높은 공장
동나이 성 대규모 공단내 기성 임대공장 호치민 중심부로부터 자동차로 1시간 30분 거리에 위치하고 있는 대규모 공단내 신축 임대공장으로 ...
임대공장
동나이
베트남 임대공장, 하노이 주변 하이증 성 공단 내 공장임대
하노이 인근 성인 하이증(Hai Duong) 성 공단내에 위치하는 신축 임대공장 하노이 중심부에서 약 1시간 30분 거리 최소 면적 4821m2 최대 면...
임대공장
하이즈엉
별도 기재
베트남 공장 임대, 호치민 인근 동나이성 대규모 공단내 소형 임대공장
동나이성에 위치한 소형임대공장 베트남 호치민 중심지에서 약 1시간 20분 거리의 동나이 성에 위치하는 대규모 공단 내에 가성비 높고 베트...
임대공장
동나이
별도 기재
호치민 인근 동나이성 대규모 공단내 임대공장(다양한 옵션과 조건)
호치민 인근 성인 동나이성 대규모 공단내에 위치한 임대공장으로 입주자의 법인설립(제조업)에 따른 투자등록증(IRC), 법인등록증(ERC) 등 ...
임대공장
동나이
㎡당 월 4.3USD(1년차) 2024년 3월 기준/비나한인에 문의
롱안 지역(Cần Giuộc, Long An)에 위치해 있으며, 호치민 푸미흥으로부터 약 20~30분 호치민 중심부 약 1시간 전후 사이공하이테크파크로부...
임대공장
롱안
비나한인 별도 상담
빈증 성 공단 내 3362 ㎡ / 3810 ㎡ 임대공장
위치: 빈증 성내 면적: 3362 m2 / 3810 m2 -스프링 쿨러 완비로 비용 절감 임대료 : 5.3 USD (관리비 포함) -3년 계약 경우: 2.5 개월 임대...
임대공장
빈증
5.3 USD (관리비 포함) 2023년 3월 현재 임대료
동나이성 연짝(NHON TRACH) 지역 공단내 임대공장(2000㎡)
호치민 중심부로부터 약 1시간(자동차 실시간) 거리의 연짝(NHON TRACH) 지역에 위치한 접근성이 뛰어난 임대공장 면적: 2,000㎡ 바닥 하중:...
임대공장
동나이
별도 기재
임대공장 3 넓이: 3,276 ㎡ 임대료: 4.10 USD/㎡ -임대료에 관리비 포함 보증금: 임대료 6개월분 납입방식: 분기별(3개월분씩 납입) 최소 임...
임대공장
빈증
별도기재
빈증 성 공단 내 다양한 면적의 임대공장 현재 임대 가능 면적: 1260㎡ / 1942㎡ (합치면 3202㎡) 임대료: 4.7USD/㎡/월(관리비 포함), 빈증...
임대공장
빈증
별도 기재
호치민 인근 빈증 성 대단위 공업 단지내 공장 임대 -각 임대료는 2022년 12월 22일까지 유효한 것으로 이후 조정된 금액으로 새로운 임대료...
임대공장
빈증
별도기재
베트남, 동나이성 공단내 신축 임대공장(독립형, EP공장 지정 가능)
동나이 성 대단위 공단내 신축 임대공장 정보 접근성 (1) Cities : - Ho Chi Minh city : 25 km - Bien Hoa city : 15 km - Vung Tau city :...
임대공장
동나이
별도 기재
Phu Tho 성 성도인 비엣찌(Việt Trì)시에서 약 20km, 자동차로 약 30분 푸토 성 대단위 공단내 위치 신축 공장 공정에 도금,염색, 기타 환경...
매물공장
기타지역
별도 기재
베트남 북부 박닌 성, 박린 신축 임대 공장, 816㎡ 부터 6,120㎡의 다양한 면적 임대
베트남 북부 하노이 인근 박닌 성 임대공장 베트남 북부 지역, 삼성전자가 진출해 있는 지역 중 한 곳인 박닌 지역의 공장임대 정보. 신축 ...
임대공장
별도 기재
베트남 하노이 인근 지역 하남성 임대공장(Phu Ly 시 소재)
베트남 북부 하남 성 성도에 위치하고 접근성이 좋으며 임대공장으로 한국 업체들이 선호하는 지역 중 한 곳. 대규모 공단에서 운영하는 것...
임대공장
별첨참고
동나이 Long Thanh 지역 공단내 독립형 신축 임대공장
동나이성 롱탄 지역 대규모 공단내 위치하고 있는 신축 독립형 신축 임대공장 토지면적: 5000 ㎡(가로 35.7m X 세로 140m 의 형태) 공장면적...
임대공장
동나이
월 임대료 11,000 USD(공장 내 시설 일체 포함), 스프링 클러 설치














